House&mini-Camp SKELICA | House in Neštin

2 Bedroom House in South Backa District, Neštin
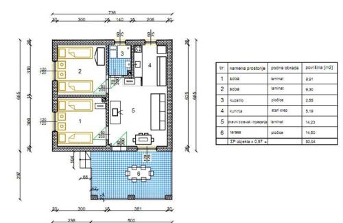
House&mini-Camp SKELICA offers accommodations in Neštin, 24 miles from Promenada Shopping Mall and 25 miles from SPENS Sports Center. This property offers access to a terrace, free private parking, and free Wifi. Novi Sad Synagogue is 25 miles away and The Port of Novi Sad is 26 miles from the vacation home. The air-conditioned vacation home consists of 2 bedrooms, a living room, a fully equipped kitchen with an oven, and 1 bathroom with a shower and a hair dryer. A TV is available. The accommodation is non-smoking. Guests can enjoy the outdoor swimming pool and garden at the vacation home. Museum of Vojvodina is 25 miles from House&mini-Camp SKELICA, while Serbian National Theatre is 25 miles from the property.
House&mini-Camp SKELICA is located in Neštin.
This 2 Bedrooms House is suitable for tourists and travelers. It has several amenities that would guarantee your comfort. These amenities include: Balcony/Terrace, Security/Safety, Internet, and several others. This is a 4 star rated property . Coming to Neštin and needing a place to stay? Be it for work or for leisure, consider staying at this House for your next visit, you will surely love it.
You can check the reviews and description of this 2 Bedrooms House if you want to learn more about this BedroomVillas.ca place in Neštin. These details are authentic, as they are provided by our partner, booking.com.
This House&mini-Camp SKELICA in Neštin is well equipped and has all facilities that have been listed below. Please note that these details were shared to us by booking.com for the listed “House&mini-Camp SKELICA”. We solely rely on their shared details and are regarded as “accurate”. If you have any concerns about the information or accuracy describing this House, please let us know.
Amenities
Facility Overview
-
Parking
-
Parking on site
-
Private Parking
-
Free parking
-
Canoeing
-
Fishing
-
Walking tours
-
Wifi in all areas
-
Smoke-free property
-
Heating
-
Air conditioning
-
Free Wifi
-
Wifi
-
Internet
-
Garden
-
Terrace
-
BBQ facilities
-
Outdoor pool
-
Outdoor pool (seasonal)
-
Swimming pool
Policies
Room Arrangement
Room Info | Facilities |
---|---|
Vacation Home
Room Type:
Vacation Home
Room Size:
50 m2
|
BathroomBathtub or shower, Private bathroom, Toilet paper, Hairdryer, Shower, ToiletMedia & TechnologyTVGeneralTrash cans, Air conditioningKitchenOven, Wine glasses, Dining table, Kitchen, Refrigerator, Kitchenette, KitchenwareLiving AreaDining areaOutdoorsBarbecue, Terrace, Private poolRoom AmenitiesClothes rack |
FAQ's
Is this House&mini-Camp SKELICA pet-friendly for guests?
No, pets are not allowed at this property. Check the guest reviews to learn what guests had to share.
What time is check-in & check-out at House&mini-Camp SKELICA?
Check-in time for House&mini-Camp SKELICA starts counting from 4:00 PM and check-out is until 10:00 AM. However, early check-in or late check-out can sometimes be negotiated between the guest and the owner or the manager of this property.
Does the House&mini-Camp SKELICA have a swimming pool?
Yes, this House&mini-Camp SKELICA has a swimming pool. Check the Facility Overview section for details about the pool and other available facilities.
How much does it cost per night to stay in House&mini-Camp SKELICA?
Best-rates for the House&mini-Camp SKELICA starts from $18 per night with includes Air Conditioner, Parking, Pool, View, Balcony/Terrace, Security/Safety, Internet, Sports/Activities, Fireplace/Heating, Barbecue/Outdoor Cooking, Child Friendly with all other facilities. BedroomVillas.ca matches every traveler with their perfect villa, resort, or rental and whether you are traveling with a group, friends, family, or pets.
Is House&mini-Camp SKELICA a family-friendly place to stay?
Based on the information we have received from the owner or our partner, this is considered to be a family-friendly property. Families have rated this house 4 stars or guests have recommended them suitable for families. As reported by the owner or manager, the house has specified that children are welcome. Please see details about suitability for your family or inquire with the property to learn more.
Is the House&mini-Camp SKELICA wheelchair accessible or offer services for disabled guests?
Based on the information received from our partner, the House&mini-Camp SKELICA has not specified they are wheelchair accessible. Likewise, there is not an elevator specified as being available at the property. Specific accessibility details may be addressed in the property details section of this page.
What is the minimum night stay policy for the House&mini-Camp SKELICA?
Based on the information reported by the owner or manager, the House&mini-Camp SKELICA indicates 1 day stay policy at this house. Guests are cautioned that the minimum stay policy may differ based on seasonality or availability and may be at the discretion of the owner or manager.
What cancellation policy is in place for House&mini-Camp SKELICA?
Based on the information reported by the owner or manager, details for the cancellation policy for the House&mini-Camp SKELICA are as follows: Cancellation policy Guests are cautioned that the cancellation policy may differ based on seasonality, availability, or current travel restrictions. Guests should also be aware that this policy may be subject to change and should be confirmed prior to booking. More details may be available on this page in the property description. However, early check-in or late check-out can sometimes be negotiated between the guest and the owner or the manager of this property.